Großzügige, gepflegte ETW mit Garage und eigenem Hofbereich
Verkauft
Sie kommen leider zu spät. Diese Wohnung hat bereits einen Käufer gefunden.
Objektart
Adresse
Objektdaten
Informationen
Ausstattung
Details
Diese wunderschöne, altersgerechte Eigentumswohnung befindet sich im Erdgeschoss eines Dreifamilienhauses. Sie besticht durch ihre großzügige Raumaufteilung und hohe Energieeffizienz.
Sie betreten die Wohnung über einen privaten, seitlich gelegenen Eingang - eine Besonderheit, die Ihnen sowohl Unabhängigkeit als auch Ruhe von den anderen Parteien des Hauses bietet, deren Zugang sich auf der Rückseite befindet.
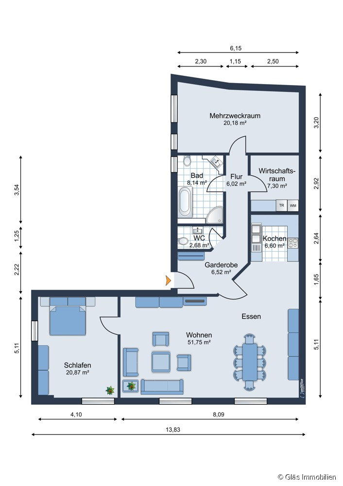
Die Wohnung ist in L-Form geschnitten. Im linken Flügel befinden sich das Gäste-WC sowie ein großzügiges Badezimmer, das mit einer bodentiefen Dusche und modernen Armaturen ausgestattet ist - ein wahrer Ort der Entspannung. Direkt gegenüber liegt der praktische Hauswirtschaftsraum, der Ihnen zusätzlichen Stauraum bietet. Am Ende dieses Bereichs erwartet Sie ein knapp 20 m² großer Raum, der sich für viele Nutzungsmöglichkeiten anbietet: ob als Büro, Hobbyraum oder Ruheoase - mit Blick in den individuell gestaltbaren Innenhof.
Der vordere Bereich der Wohnung bildet das Herzstück: eine offene Wohn- und Esslandschaft von rund 60 m², die Ihnen viel Platz für gesellige Abende und entspannte Stunden bietet. Die offene Küche fügt sich harmonisch in den Raum ein und lässt das Kochen zum Vergnügen werden. Direkt angrenzend befindet sich das großzügige Schlafzimmer mit rund 21 m².
Die Wohnung ist in sehr gutem Zustand, sodass Sie direkt einziehen können. Die Böden sind größtenteils mit Fliesen ausgestattet, die den Raum hell und einladend wirken lassen. Ausgenommen davon sind das Schlafzimmer und der Vielzweckraum, die mit Vinylboden ausgestattet sind.
Ein Highlight der Wohnung ist der Hofbereich, der Ihnen zur alleinigen Nutzung zur Verfügung steht. Hier können Sie entspannen, Gartenmöbel aufstellen oder sich eine kleine grüne Oase schaffen. Der Bereich ist überdacht, sodass Sie auch bei weniger schönem Wetter die frische Luft genießen können - sei es für Sport, gesellige Grillabende oder einfach zum Abschalten. An den Hofbereich schließt sich die Garage und ein zusätzlicher Kellerraum an.
Hervorzuheben ist die nachträglich installierte dezentrale Lüftungsanlage. Diese sorgt durch zwei miteinander vernetzte Lüfter für eine optimale Belüftung der Wohnung und garantiert so stets frische Luft.
Das gesamte Gebäude wurde in den letzten Jahren modernisiert. 2001 wurde das Dach gedämmt, 2002 eine neue Heizungsanlage eingebaut, 2004 kam ein Wärmeverbundsystem hinzu und die Fenster der Erdgeschosswohnung wurden 2016 erneuert.
Möchten Sie Ihre eigenen Ideen und Eindrücke zu dieser Wohnung sammeln? Dann vereinbaren Sie jetzt Ihren privaten Kennenlern-Termin!
Das Drei-Familienhaus befindet sich in einer Seitenstraße in Großrosseln. Die Gemeinde Großrosseln mit fünf weiteren Ortsteilen liegt im waldreichen, grünen Warndt an der Rossel und gehört zum Regionalverband Saarbrücken.
Großrosseln selbst ist eine quirlige Gemeinde mit funktionierender Infrastruktur. Hier finden Sie noch eine Vielzahl unterschiedlicher Geschäfte sowie Sport- und Freizeiteinrichtungen. Unter dem Motto "Natur erleben - Menschen begegnen" bietet die Gemeinde ein vielfältiges und innovatives Angebot.
Für Frankreichfans: in wenigen erreichen Sie die Französische Nachbargemeinde Petite-Rosselle (Kleinrosseln).
Das Mittelzentrum Völklingen ist 9 - die Landeshauptstadt Saarbrüchen ca. 15 km entfernt.
Wollen Sie mehr über Großrosseln erfahren? Unter dieser Internetadresse können Sie sich den Imagefilm
https://www.youtube.com/watch?v=uyOC1UsYhm4
anschauen oder besuchen Sie die Homepage der Gemeinde:
https://www.grossrosseln.de
Es liegt ein Energieverbrauchsausweis vor.
Dieser ist gültig bis 1.11.2034.
Endenergieverbrauch beträgt 100.70 kwh/(m²*a).
Wesentlicher Energieträger der Heizung ist Öl.
Das Baujahr des Objekts lt. Energieausweis ist 1954.
Die Energieeffizienzklasse ist D.
Diese Immobilie bieten wir Ihnen exklusiv im Alleinauftrag an.
Ein Energieausweis liegt noch nicht vor, wurde aber vom Eigentümer beauftragt.
Kaufnebenkosten:
Vom Kaufpreis 6,5 % Grunderwerbsteuer, ca. 1,5 % Notar- u. Gerichtskosten, 3,57 % inkl. gesetzl. MwSt. Erfolgshonorar des Maklers
Das vorliegende Verkaufsangebot ist freibleibend und unverbindlich. Die Angaben zum Objekt stammen vom Verkäufer und dienen einer ersten Information. Für die Richtigkeit und Vollständigkeit wird keine Haftung übernommen. Im übrigen gelten unsere Allgemeinen Geschäftsbedingungen (siehe www.glaes-immobilien.de).
Ombudsmann Immobilien IVD/VPB - Informationspflicht nach § 36 VSBG
Der Immobilienverband Deutschland IVD e.V. hat mit Beteiligung des Verbraucherverbandes Verband Privater Bauherren e.V. (VPB) eine Schlichtungsstelle nach Maßgabe des Verbraucherstreitbeilegungsgesetzes (VSBG) eingerichtet. Vor der Schlichtungsstelle können u. a. Streitigkeiten zwischen Verbrauchern und Mitgliedern des IVD in einem außergerichtlichen Schlichtungsverfahren beigelegt werden.
Die Gläs Immobilien GmbH ist Mitglied im IVD und aufgrund der Satzung des IVD verpflichtet, gegenüber der Ombudsstelle eine schriftliche Stellungnahme abzugeben, wenn diese ein Verfahren einleitet. An Schlichtungsverfahren bei anderen Schlichtungsstellen nimmt die Gläs Immobilien GmbH grundsätzlich nicht teil.
Die Anschrift der Schlichtungsstelle des IVD lautet: Ombudsmann Immobilien IVD/VPB - Grunderwerb und -verwaltung, Littenstraße 10, 10179 Berlin. Weitere Informationen zur Schlichtungsstelle (z.B. weitere Kommunikationsdaten, Verfahrensordnung) erhalten Sie unter http://www.ombudsmann-immobilien.net.
Online-Streitbeilegung gemäß Art. 14 Abs. 1 ODR-VO
Die Europäische Kommission stellt eine Plattform zur Online-Streitbeilegung (OS) bereit, die Sie hier finden: http://ec.europa.eu/consumers/odr.
Widerrufsbelehrung
Widerrufsrecht
Sie haben das Recht, binnen vierzehn Tagen ohne Angabe von Gründen diesen Vertrag zu widerrufen.
Die Widerrufsfrist beträgt vierzehn Tage ab dem Tag des Vertragsabschlusses.
Um Ihr Widerrufsrecht auszuüben, müssen Sie uns, Gläs Immobilien GmbH, Marktstr. 5, 66333 Völklingen, Telefon: +49 (0) 6898-30007-0 - Telefax: +49 (0) 6898-30007-27 - Email: service@glaes-immobilien.de, mittels einer eindeutigen Erklärung (z. B. ein mit der Post versandter Brief, Telefax oder E-Mail) über Ihren Entschluss, diesen Vertrag zu widerrufen, informieren. Sie können dafür das beigefügte Muster-Widerrufsformular verwenden, das jedoch nicht vorgeschrieben ist.
Zur Wahrung der Widerrufsfrist reicht es aus, dass Sie die Mitteilung über die Ausübung des Widerrufsrechts vor Ablauf der Widerrufsfrist absenden.
Folgen des Widerrufs
Wenn Sie diesen Vertrag widerrufen, haben wir Ihnen alle Zahlungen, die wir von Ihnen erhalten haben, einschließlich der Lieferkosten (mit Ausnahme der zusätzlichen Kosten, die sich daraus ergeben, dass sie eine andere Art der Lieferung als die von uns angebotene günstigste Standardlieferung gewählt haben), unverzüglich und spätestens binnen vierzehn Tagen ab dem Tag zurückzuzahlen, an dem die Mitteilung über Ihren Widerruf dieses Vertrags bei uns eingegangen ist. Für diese Rückzahlung verwenden wir dasselbe Zahlungsmittel, das Sie bei der ursprünglichen Transaktion eingesetzt haben, es sei denn, mit Ihnen wurde ausdrücklich etwas anderes vereinbart; in keinem Fall werden Ihnen wegen dieser Rückzahlung Entgelte berechnet.
Haben Sie verlangt, dass die Dienstleistung während der Widerrufsfrist beginnen soll, so haben Sie uns einen angemessenen Betrag zu zahlen, der dem Anteil der bis zu dem Zeitpunkt, zu dem Sie uns von der Ausübung des Widerrufsrechts hinsichtlich dieses Vertrags unterrichten, bereits erbrachten Dienstleistungen im Vergleich zum Gesamtumfang der im Vertrag vorgesehenen Dienstleistungen entspricht.
Muster-Widerrufsformular
Wenn Sie den Vertrag widerrufen wollen, dann füllen Sie bitte dieses Formular aus und senden Sie es zurück.
- An Gläs Immobilien GmbH, Marktstr. 5, 66333 Völklingen Telefon +49(0)6898-300070
Telefax +49(0)6898-3000727 Email service@glaes-immobilien.de
- Hiermit widerrufe(n) ich/wir (*) den von mir/uns (*) abgeschlossenen Vertrag über den Kauf der folgenden Waren (*)/ die Erbringung der folgenden Dienstleistung (*)
- Bestellt am (*)/erhalten am (*)
- Name des/der Verbraucher(s)
- Anschrift des/der Verbraucher(s)
- Unterschrift des/der Verbraucher(s) (nur bei Mitteilung auf Papier)
- Datum
(*) Unzutreffendes streichen.
Ansprechpartner
Telefax: +49(0)6898-3000727
nadja.osburg@glaes-immobilien.de
Energieausweis (Verbrauchsausweis)
100,70 kWh / (m²*a) Energieverbrauchskennwert
100,70 kWh / (m²*a) Energieverbrauchskennwert
100,70 kWh / (m²*a) Energieverbrauchskennwert
Weitere Informationen
| Wesentlicher Energieträger | Öl |
| Energieausweis gültig bis | 2034-11-01 |
| Energieausweis Jahrgang | ab dem 1.5.2014 |
| Energieverbrauch für Warmwasser | enthalten |
| Energieausweis Werteklasse | D |
| Energieausweis Baujahr | 1954 |
| Energieausweis Gebäudeart | Wohngebäude |
| Heizung | Etagenheizung |
| Befeuerung | Öl |
Ich bin damit einverstanden, dass mir Karten von Google angezeigt werden. Es gelten die Datenschutzbedingungen von Google (https://policies.google.com/privacy).
Ich bin einverstanden